Мотор-редукторы планетарные МПО1М-10

Мотор-редукторы планетарные МПО1М-10 купить в Самаре по низкой цене
Планетарные мотор-редукторы серии МПО1М-10 обладают простотой ввода в эксплуатацию и широкими техническими возможностями. Приобрести его можно на нашем сайте заполнив форму обратной связи. Технические тонкости подробную информацию можно запросить у наших компетентных менеджеров.
Планетарные мотор-редукторы МПО1М-10 применяется в составе с промышленными миксерами и мешалками в химической отрасли. Они являются изделиями общепромышленного типа и могут применяться во всех отраслях промышленности. Мотор-редуктор имеет высокое качество и долговечен в эксплуатации так, как каждый этап сборки подвергается тщательному контролю качества. Пожелание заказчика возможна комплектация агрегата взрывозащищенным электродвигателем.
Цена: от 34 300 руб.
Базовые условия использования планетарного мотор-редуктора:
- Устройство функционирует при постоянной/переменной нагрузке (одного направления/реверсивная);
- Режим работы выбирается исходя из особенностей технологического процесса: с остановками или не более 24 час/сут. подряд;
- Вал мотор редуктора осуществляет вращения в обе стороны, частота не должна быть выше 1500об/мин.;
- Рекомендуется использовать мотор-редуктор в неагрессивной среде;
- Особенности климатич. исполнения: У - для категорий размещения 2, 3, исполнение Т - для категории 2;
- Температурные показатели окружающей среды в пределах: от –40°С до +50°С.
Общее описание:

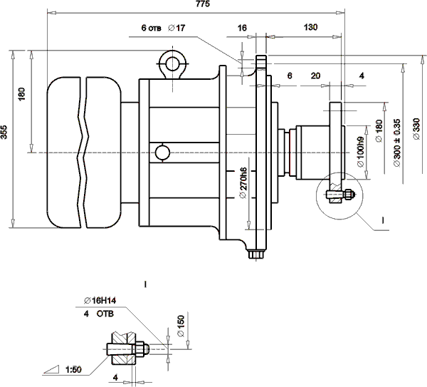
РИС 1. Габаритные и присоединительные размеры.
ВК-вертикальное с опорным фланцем, выходным валом вниз и кольцевой канавкой на нём

РИС 2. Габаритные и присоединительные размеры
Ф-2П - горизонтальное, с выходным валом в виде фланцевой полумуфты с встроенным зубчатым компенсатором
Технические характеристики мотор-редуктора МПО1М-10
| Типоразмер мотор-редуктора | Передаточное число | Частота вращения выходного вала, об/мин | Крутящий момент на выходном валу, Н. м | Электродвигатель | Масса мотор-редуктора, кг | |
|---|---|---|---|---|---|---|
| Типоразмер | Мощность, кВт | |||||
| МПО1М-10-7,34-3,0/130 | 7,34 | 130 | 210 | АИР112М6 | 3,0 | 125 |
| МПО1М-10-5,74-3,0/170 | 5,74 | 170 | 160 | АИР112М6 | 3,0 | 125 |
| МПО1М-10-5,74-5,5/170 | 5,74 | 170 | 290 | АИР132S6 | 5,5 | 150 |
| МПО1М-10-7,34-3,0/195 | 7,34 | 195 | 140 | АИР100S4 | 3,0 | 105 |
| МПО1М-10-7,34-5,5/195 | 7,34 | 195 | 260 | АИР112М4 | 5,5 | 125 |
| МПО1М-10-5,74-3,0/250 | 5,74 | 250 | 110 | АИР100S4 | 3,0 | 105 |
| МПО1М-10-5,74-5,5/250 | 5,74 | 250 | 205 | АИР112М4 | 5,5 | 125 |
| МПО1М-10-5,74-7,5/250 | 5,74 | 250 | 278 | АИР132S4 | 7,5 | 150 |
| Максимально допускаемый крутящий момент на выходном валу 430 Н.м | ||||||
| Максимально допускаемая радиальная консольная нагрузка на выходном валу 1500 Н | ||||||
Пример условного обозначения при заказе:
Мотор-редуктор МПО1М-10-ВК-5,74-7,5/250-АИР132S4-У3, что означает:
Мотор-редуктор планетарный типоразмера МПО1М-10; конструктивное исполнение ВК – вертикальное с опорным фланцем, выходным валом вниз и кольцевой канавкой на нем для закладного кольца, передающего осевые усилия; передаточное отношение редукторной части – 5,74; мощность электродвигателя – 7,5 кВт; частота вращения выходного вала – 250 об/мин; тип электродвигателя – АИР132S4; климатическое исполнение – У и категория размещения – 3.